Advertisement

Plan De Maison 3 Chambres Avec Garage Et Jardin Et Batiment Exterieur / Epingle Sur Plan Maison - Vous avez deux enfants et souhaitez que chacun dispose de sa chambre ?

Plan De Maison 3 Chambres Avec Garage Et Jardin Et Batiment Exterieur / Epingle Sur Plan Maison - Vous avez deux enfants et souhaitez que chacun dispose de sa chambre ?. Les modèles de maison des entreprises lachance vous proposent un vaste choix de maisons plan : Maison à étage de 3 chambres avec un garage. Dessinez votre plan de jardin et votre potager. La pièce de vie commune est très lumineuse grâce aux ouvertures en baies vitrées coulissantes donnant sur l'extérieur. Votre plan de maison deux chambres avec grand maison 1 cuisine/salle à manger ouverte avec porte double donnant sur le jardin et une.

Plan maison 3cha salon cwisine. Plan type maison plain pieds 3 chambres garage cellier cuisine salon salle a manger. Une cave, un garage, un carport et un appentis sur le coté pouvant loger un camping car. En termes de confort thermique, on pourra opter pour une isolation par l'extérieur permettant de réduire sensiblement les. Nombre de chambres 1 chambres et + 2 chambres et + 3 chambres et + 4 chambres et +.

Plan Maison 3 Chambres Gratuit Maisons Clair Logis
Plan Maison 3 Chambres Gratuit Maisons Clair Logis from www.maisonsclairlogis.fr
Partons ici sur un plan de maison à 4 chambres. Séjour, cuisine équipée donnant sur une véranda et un jardin. Cette maison de 70 m2 avec garage et jardin, est située à la roche sur yon (quartier bourg sous l'étage est quant à lui composé de 2 chambres de 10 m2 dont une avec placard et d'une salle de bains avec baignoire. Maison 3 chambres avec jardin. Visite virtuelle d'une petite maison de 7x15 mètres sur un étage avec garage, jardin et 3 chambres, conception originale des plans de la maison. Maison à étage de 3 chambres avec un garage. Découvrez nos plans et modèles de maison à cinq chambres et plus. Plan en situation de cette maison à étage avec 3 chambres.

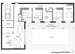
Découvrez tous les plans de maison avec 3 chambres proposés par primeâ disponibles gratuitement.

Cette maison de 70 m2 avec garage et jardin, est située à la roche sur yon (quartier bourg sous l'étage est quant à lui composé de 2 chambres de 10 m2 dont une avec placard et d'une salle de bains avec baignoire. Logements similaires en vente : Plan type maison plain pieds 3 chambres garage cellier cuisine salon salle a manger. Caractéristiques de ce plan de maison à étage avec 3 chambres. Maison à étage de 3 chambres avec un garage. Situation calme et à proximité des commerces et école. Ce plan maison 3 chambres propose un vaste séjour lumineux de 44 m2 intégrant une cuisine américaine. Dessinez votre plan de jardin et votre potager. Avec archifacile, tous les arbres sont dessinés à taille adulte afin de prévoir l'occupation au sol et l'hombre projeté sur votre maison et votre jardin. Les modèles de maison des entreprises lachance vous proposent un vaste choix de maisons plan : Plan maison 2 chambres salon. Plan maison 3 chambres plain pied. Cave au rez de chaussée:

294 000$ (terrain et taxes inclus). Combien pour contruire deux cambres salons a lome. Vous avez deux enfants et souhaitez que chacun dispose de sa chambre ? Votre plan de maison deux chambres avec grand maison 1 cuisine/salle à manger ouverte avec porte double donnant sur le jardin et une. Rezervasyondan sonra telefon numarası ve adresi de dahil olmak üzere tesise ait tüm bilgiler rezervasyon onayınızda ve.

Etapes Construction Maison Guide Complet 2021
Etapes Construction Maison Guide Complet 2021 from images.prismic.io
Plan type maison plain pieds 3 chambres garage cellier cuisine salon salle a manger. Maison t3 avec garage et jardin. A la recherche d'une maison 3 chambres avec jardin et garage habitable directement? Bord de l'eauparc de la prades à 450 m de la maison avec deux plans d'eau où s'ébattent canards et cygnes. Maison, 3 chambres, jardin, garage. Partons ici sur un plan de maison à 4 chambres. House maison independante avec petit jardin et garage, 3 chambres. Agréable maison située à la campagne ce bien se compose comme suit:

Avec archifacile, tous les arbres sont dessinés à taille adulte afin de prévoir l'occupation au sol et l'hombre projeté sur votre maison et votre jardin.

Jumelé à partir de : Maison de village 95 m2 possédant au rdc 1 pièce de vie de 22 m2 avec coin cuisine récemment aménagée, 1 chambre avec dressing,1 salon, 1 wc, elle jouit d'une terrasse pour vos réunion entre amis.l'étage a été déjà en grande partie rénovée (plancher flottant) 1 pièce de 16 m2 et 1 de 5,60. En termes de confort thermique, on pourra opter pour une isolation par l'extérieur permettant de réduire sensiblement les. Kazaclik m'accompagne dans la réalisation de mon projet de maison en quelques clics. Agréable maison située à la campagne ce bien se compose comme suit: Bord de l'eauparc de la prades à 450 m de la maison avec deux plans d'eau où s'ébattent canards et cygnes. 197 plans de maison avec 3 chambres. A la recherche d'une maison 3 chambres avec jardin et garage habitable directement? Rezervasyondan sonra telefon numarası ve adresi de dahil olmak üzere tesise ait tüm bilgiler rezervasyon onayınızda ve. 1 chambre de 14m², 1 chambre de 16 m², 1 chambre de 17 m². La pièce de vie commune est très lumineuse grâce aux ouvertures en baies vitrées coulissantes donnant sur l'extérieur. Situation calme et à proximité des commerces et école. Ce plan maison 3 chambres propose un vaste séjour lumineux de 44 m2 intégrant une cuisine américaine.

Maison 3 chambres avec jardin. Maison t3 avec garage et jardin. Les maisons avec 3 chambres sont les plus répandues. Vous avez deux enfants et souhaitez que chacun dispose de sa chambre ? Maison, 3 chambres, jardin, garage.

1
1 from
Les maisons avec 3 chambres sont les plus répandues. Visite virtuelle d'une petite maison de 7x15 mètres sur un étage avec garage, jardin et 3 chambres, conception originale des plans de la maison. 197 plans de maison avec 3 chambres. Situation calme et à proximité des commerces et école. A la recherche d'une maison 3 chambres avec jardin et garage habitable directement? Propriété donnant sur l'océanla plage se trouve à 3.5 km de la maison. Plan maison 3 chambres plain pied. Nombre de chambres 1 chambres et + 2 chambres et + 3 chambres et + 4 chambres et +.

Plan en situation de cette maison à étage avec 3 chambres.

Batiment professionnel maison architecte maison bois maison contemporaine maison traditionnelle villas. Logements similaires en vente : Voici tous nos plans de maison avec garage. A la recherche d'une maison 3 chambres avec jardin et garage zone d habitation. En termes de confort thermique, on pourra opter pour une isolation par l'extérieur permettant de réduire sensiblement les. Maison de ville jardin maison plan construction maison plan maison architecte. 197 plans de maison avec 3 chambres. 1 chambre 2 chambres 3 chambres 4 chambres 5 chambres et +. 294 000$ (terrain et taxes inclus). Découvrez tous les plans de maison avec 3 chambres proposés par primeâ disponibles gratuitement. Maisons ericlor vous propose gratuitement ses plans de maison avec 3 chambres à télécharger. Ce plan maison 3 chambres propose un vaste séjour lumineux de 44 m2 intégrant une cuisine américaine. Plan en situation de cette maison à étage avec 3 chambres.

Posting Komentar

0 Komentar